相關產品:
乙炔阻火器阻產品概述:
HF-4-3乙炔阻火器是一種乙炔專用的回火器,采用特種銅合金和不銹鋼、碳鋼制作而成。它在乙炔管道中具有阻止火苗的特點。可有效地切斷火源,杜絕管道中燃爆事故的發生。在工業乙炔管道過程中,越來越顯示它的必要性與阻燃的優越性。上海戎鈦閥門HF乙炔阻火器爆性能合格,連續13次阻爆性能試驗每次均能阻火。耐燒性能合格,耐燒試驗1小時無回火現象。殼體水壓試驗合格。符合國家標準GB5908-86的要求。
乙炔阻火器阻工作原理:
HF乙炔阻火器的作用是防止外部火焰竄入存有易燃易爆氣體的設備、管道內或阻止火焰在設備、管道間蔓延。是應用火焰通過熱導體的狹小孔隙時,由于熱量損失而熄滅的原理設計制造。
乙炔阻火器阻火層:
采用不銹鋼"N"形,雙層波紋帶為阻火芯件而且在芯件內部有一個十字結構的支架(或在表面壓上Y形架)借以增強芯件的牢靠性,避免芯件被點燃的介質所產生的爆炸壓力沖散。以此原理來設計三角形孔的高度阻止火焰的通過,再加上足夠的流道長度來吸收火焰的熱量,使其在芯件中熄滅,避免了氣體在芯件的另一端被復燃的可能性。
乙炔阻火器阻產品特點:
1、可以迅速阻斷火源,杜絕管道中燃爆事故的發生。
2、可以有效地防止乙炔管道閥門在突然開啟時易形成的"絕熱壓縮",局部溫度驟升,成為著火能源。
3、可以防止在閥門前后壓差作用下,高速運動的物質微粒(如鐵銹、粉塵、焊渣等)與閥后管道摩擦、撞擊產生火花而成為著火能源。
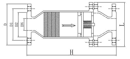
乙炔阻火器阻主要外形和連接尺寸:

| 口徑 | L | H | D | D1 | D2 |
| DN20 | 125 | 330 | 105 | 75 | 55 |
| DN25 | 125 | 330 | 115 | 85 | 65 |
| DN50 | 175 | 400 | 160 | 125 | 100 |
| DN80 | 210 | 480 | 195 | 160 | 135 |
| DN100 | 230 | 500 | 215 | 180 | 155 |