CARX復合式排氣閥概況:
復合式排氣閥用于管路上的*高點或有閉氣的地方,排除管內的氣體來疏通管道,達到正常工作,如不裝排氣閥,管內流動的液體產生動熱引起氣體,形成短路,使管道出水容量達不到要求,其次,管道運轉時出現停電、停泵管道會出現負壓力,而會引起管道振動或破裂,排(吸)氣閥就迅速把空氣吸入管內,防止管道振動或破裂。
CARX復合式排氣閥結構與用途:
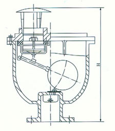
CARX復合式排氣閥為圓桶狀式閥體,共內部主要有不銹鋼浮球及塞頭。CARX復合式排氣閥裝設于泵埔出口處或送配水管線中,用以大量排除管道中的集結之空氣,以增進水管及抽水機使用效率,且與管內一旦出現負壓時,此閥能迅速吸入空氣,以保管線因負壓所產生損壞。
CARX復合式排氣閥作用原理:
當管內開始注水時,塞頭停留在開啟位置,進行大量排氣,當空氣排完時,閥內積水浮球被浮起,傳動塞頭至關閉位置,停止大量排氣;當管內水正常輸送時,如有少量空氣聚集在閥內到相當程度,閥內水位下降,浮球隨之下降,此時空氣則由小孔排出。當抽水機停止,管內水流空時,或遇管內產生負壓時,此時塞頭開啟,吸入空氣確保管線安全。
CARX復合式排氣閥零件材質
| 序 號 | 名 稱 | 材 質 |
| 1 | 閥 體 | HT200 |
| 2 | 閥 蓋 | HT200 |
| 3 | 浮 球 | SUS 304 |
| 4 | 杠桿架 | 鑄銅ZH59 |
| 5 | 桿 | 鑄銅ZH59 |
| 6 | 塞 頭 | 丁睛橡膠NBR |
CARX復合式排氣閥結構圖:

CARX復合式排氣閥主要外形及連接尺寸
| 型 號 |
公稱通徑 DN(mm) |
尺 寸(mm) | ||||||
| H | L | L1 | D | D1 | D2 | z-φd | ||
|
CARX-1.0 CARX-1.6 |
20 | 375 | 290 | 180 | 105 | 75 | 55 | 4-12 |
| 25 | 375 | 290 | 180 | 115 | 85 | 65 | 4-14 | |
| 50 | 480 | 360 | 205 | 160 | 125 | 100 | 4-14 | |
| 80 | 520 | 405 | 245 | 195 | 160 | 135 | 4-18 | |
| 100 | 530 | 405 | 245 | 215 | 180 | 155 | 4-18 | |
CARX復合式排氣閥每小時排氣量表
| 規格DN | 25 | 50 | 80 | 100 | 150 | 200 | 250 | 300 | 350 | 400 |
| 立方米/小時 | 2-88 | 85-352 | 22-904 | 34-1413 | 76-3179 | 135-8831 | 212-8831 | 305-12717 | 415-17309 | 542-22608 |