杠桿式蒸汽減壓閥
產品型號:Y45H/Y
發布時間:2008-5-23
杠桿式蒸汽減壓閥主要由閥體、閥座、閥瓣等零件組成,采用雙閥座、雙錐體閥瓣的結構。采用壓力平衡式閥瓣、升降調節。其調節機構采用扛桿式,可配用DKJ型或其它型角行程電動執行器,實現遙控和自動控制。
下一個產品:內螺紋高靈敏度蒸汽減壓閥
上一個產品:加大薄膜型高靈敏度減壓閥
相關產品:
杠桿式蒸汽減壓閥結構特點
杠桿式蒸汽減壓閥主要由閥體、閥座、閥瓣等零件組成,采用雙閥座、雙錐體閥瓣的結構。采用壓力平衡式閥瓣、升降調節。其調節機構采用扛桿式,可配用DKJ型或其它型角行程電動執行器,實現遙控和自動控制。 本系列產品的減壓比用到0.6較為合適。本產品主要用于蒸汽管路,調節壓力。廣泛應用在熱電聯產、輕紡、印染、石化、制糖等行業。
杠桿式蒸汽減壓閥主要技術參數和性能指標
| 公稱壓力(Mpa) | 1.6 | 2.5 | 4.0 | 6.4 | 10.0 | 16.0 |
| 殼體試驗壓力(Mpa) | 2.4 | 3.75 | 6.0 | 9.6 | 15.0 | 24 |
| 密封試驗壓力(Mpa) | 1.76 | 2.75 | 4.4 | 7.04 | 11.0 | 17.6 |
| *高進口壓力(Mpa) | 1.6 | 2.5 | 4.0 | 6.4 | 10.0 | 16.0 |
| 出口壓力范圍(Mpa) | *佳減壓比0.6 | |||||
| 滲漏量 | 0.5%QMax | |||||
| 溫量-壓力等級 | ANSI B16.34 | |||||
杠桿式蒸汽減壓閥主要零件材料
| 零件名稱 | 零件材料 |
| 閥體 閥蓋 底蓋 | WCB |
| 閥座 | 304 |
| 閥瓣 | 2Cr13 |
| 閥桿 | 2Cr13 |
| 墊片 | 柔性石墨/1Cr18Ni9 |
| 導向套 | 2Cr13 |
| 填料 | 柔性石墨 |
| 螺栓 | 35CrMoA |
| 螺母 | 45 |
杠桿式蒸汽減壓閥流量系數(Cv)
| DN | 50 | 65 | 80 | 100 | 125 | 150 | 200 | 250 | 300 | 350 | 400 | 500 |
| Cv | 20 | 25 | 50 | 60 | 70 | 110 | 150 | 230 | 420 | 540 | 710 | 1020 |
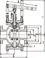
杠桿式蒸汽減壓閥結構尺寸圖:

杠桿式蒸汽減壓閥外形尺寸(PN1.6-4.0)
| 公稱通徑DN | 外 形 尺 寸 | ||||
| L | L1 | H | Hl | l | |
| 50 | 300 | 150 | 520 | 190 | 565 |
| 65 | 340 | 170 | 540 | 205 | 650 |
| 80 | 380 | 190 | 550 | 215 | 650 |
| 100 | 400 | 215 | 580 | 240 | 800 |
| 125 | 430 | 225 | 620 | 275 | 800 |
| 150 | 450 | 230 | 650 | 320 | 800 |
| 200 | 500 | 260 | 790 | 340 | 800 |
| 250 | 550 | 285 | 850 | 370 | 800 |
| 300 | 750 | 395 | 940 | 460 | 900 |
| 350 | 850 | 445 | 990 | 530 | 900 |
| 400 | 950 | 550 | 1120 | 660 | 1000 |
| 500 | 1130 | 680 | 1660 | 800 | 1000 |
杠桿式蒸汽減壓閥外形尺寸(PN6.4-16.0)
| 公稱通徑DN | 外 形 尺 寸 | ||||
| L | L1 | H | Hl | l | |
| 50 | 300 | 150 | 520 | 200 | 565 |
| 65 | 340 | 170 | 540 | 215 | 650 |
| 80 | 380 | 190 | 550 | 225 | 650 |
| 100 | 400 | 215 | 580 | 250 | 800 |
| 125 | 430 | 225 | 620 | 285 | 800 |
| 150 | 450 | 230 | 650 | 330 | 800 |
| 200 | 500 | 260 | 790 | 355 | 800 |
| 250 | 550 | 285 | 850 | 390 | 800 |
| 300 | 750 | 395 | 940 | 480 | 900 |
| 350 | 850 | 445 | 990 | 550 | 900 |
| 400 | 950 | 550 | 1120 | 700 | 1000 |
| 500 | 1130 | 680 | 1660 | 820 | 1000 |
相關產品