A46F先導式安全閥產品介紹:
先導式安全閥是一種由主閥和導閥組成的一種新穎結構的安全閥,導閥響應系統介質壓力自身動作從而控制主閥的開關動作。
A46F先導式安全閥工作原理:
當系統正常工作,先導式安全閥處于關閉狀態時,系統壓力通過進口壓力管、導閥和氣室壓力管傳到主閥閥瓣頂部的圓頂氣室,從而在主閥瓣上產生了一個向下的凈作用力,使主閥處于關閉狀態。當系統壓力達到整定壓力時,導閥開啟且滑梭封閉導閥進氣通道,主閥氣室的壓力通過導閥排放卸壓,由于系統壓力高于回座壓力,滑梭封閉進氣通道,從而隔斷流體在導閥中的流動,這時主閥氣室的壓力急劇下降,主閥閥瓣完全打開,流體通過主閥泄放降壓。當系統壓力降到一定值時,導閥的彈簧力克服了閥進口壓力作用在滑梭上的力,導閥回座,頂桿頂開滑梭,*后使得流體重新進入主閥的圓頂氣室,關閉主閥。
A46F先導式安全閥應用范圍:
先導式安全閥特別適用于高背壓、大流量、高壓力和安裝位置緊湊的場所應用。先導式安全閥主要用于石油天然氣、化工、電力、冶金和城市燃氣等領域,是受壓設備、容器或管路上的*佳超壓保護裝置。
A46F先導式安全閥結構特點:
1、閥座軟密封保證安全閥起跳前后的良好密封性。
2、允許工作壓力接近安全閥的整定壓力。
3、較小超壓就能使安全閥主閥迅速達到全啟狀態。
4、安全閥動作性能和開啟高度不受背壓的影響。
5、啟閉壓差可調。
6、導閥不流動型結構設計減少了有害介質的排放和環境污染。
7、可在線檢測安全閥的整定壓力。
先導式安全閥的主要優點是變彈簧直接作用為導閥間接作用,提高了動作的靈敏度,而且主閥采用套筒活塞式,雙重密封閥座結構,動作精度高、重復性好、回座快、不泄漏、能帶高背壓排放、工作等命長、工作穩定可靠,它還可在線調校,反復啟跳排放后,仍然能自動回座,關閉嚴密,操作維護方便。
A46F先導式安全閥標準規范:
結構長度標準:GB/T 12221-2005
連接法蘭標準:GB/T 9113
壓力溫度等級:GB/T 12224-2005
試驗檢驗標準:GB/T 13927-2008
A46F先導式安全閥主要零部件材料:
| NO. | 零件名稱 | Ax46Y/F 材料 | KAX46Y/F材料 |
| 1 | 閥體 | WCB | WCB |
| 2 | 閥瓣 | 2Cr13/2Cr13+PTFE | 1Cr18Ni9Ti/1Cr18Ni9Ti+PTFE |
| 3 | 導向套 | 1Cr18Ni9Ti | 1Cr18Ni9Ti |
| 4 | 彈簧 | 50CrVA | 50CrVA |
| 5 | O型圈 | 氟橡膠 | 氟橡膠 |
| 6 | 閥蓋 | 25 | 25 |
| 7 | 導閥 | 部件 | |
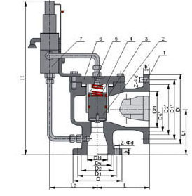
A46F先導式安全閥產品圖片及結構圖:

A46F先導式安全閥外形尺寸和連接尺寸:
| 型號 | 公稱通徑 | do | L | L1 | L2 | H | DN' | D | D1 | D2 | D6 | b | Z-ød | D' | D1' | D2' | D6' | b' | Z'-ød' | ||||
AF46Y-16 |
25 | 15 | 110 | 95 | 150 | 365 | 32 | 115 | 85 | 65 | 16 | 4-14 | 140 | 100 | 78 | 18 | 4-18 | ||||||
| 32 | 20 | 115 | 100 | 150 | 375 | 40 | 140 | 100 | 78 | 18 | 4-18 | 150 | 110 | 85 | 18 | 4-18 | |||||||
| 40 | 25 | 120 | 110 | 160 | 390 | 50 | 150 | 110 | 85 | 18 | 4-18 | 165 | 125 | 100 | 20 | 4-18 | |||||||
| 50 | 32 | 135 | 120 | 160 | 410 | 65 | 165 | 125 | 100 | 20 | 4-18 | 185 | 145 | 120 | 20 | 4-18 | |||||||
| 65 | 40 | 160 | 140 | 175 | 435 | 80 | 185 | 145 | 120 | 20 | 4-18 | 200 | 160 | 135 | 20 | 8-18 | |||||||
| 80 | 50 | 170 | 135 | 175 | 451 | 100 | 200 | 160 | 135 | 20 | 8-18 | 220 | 180 | 155 | 22 | 8-18 | |||||||
| 100 | 65 | 195 | 175 | 195 | 500 | 125 | 220 | 180 | 155 | 22 | 8-18 | 250 | 210 | 185 | 24 | 8-18 | |||||||
| 125 | 80 | 210 | 190 | 220 | 526 | 150 | 250 | 210 | 185 | 22 | 8-18 | 285 | 240 | 210 | 24 | 8-23 | |||||||
| 150 | 100 | 255 | 230 | 265 | 623 | 175 | 285 | 240 | 210 | 24 | 8-23 | 315 | 270 | 240 | 26 | 8-23 | |||||||
| 200 | 125 | 300 | 260 | 300 | 690 | 250 | 340 | 295 | 265 | 26 | 12-23 | 405 | 355 | 320 | 30 | 12-26 | |||||||
AF46Y-25 |
25 | 15 | 110 | 95 | 150 | 365 | 32 | 115 | 85 | 65 | 16 | 4-14 | 140 | 100 | 78 | 18 | 4-18 | ||||||
| 32 | 20 | 115 | 100 | 150 | 375 | 40 | 140 | 100 | 78 | 18 | 4-18 | 150 | 110 | 85 | 18 | 4-18 | |||||||
| 40 | 25 | 120 | 110 | 160 | 390 | 50 | 150 | 110 | 85 | 18 | 4-18 | 165 | 125 | 100 | 20 | 4-18 | |||||||
| 50 | 32 | 135 | 120 | 160 | 410 | 65 | 165 | 125 | 100 | 20 | 4-18 | 185 | 145 | 120 | 20 | 4-18 | |||||||
| 65 | 40 | 160 | 140 | 175 | 435 | 80 | 185 | 145 | 120 | 22 | 8-18 | 200 | 160 | 135 | 20 | 8-18 | |||||||
| 80 | 50 | 170 | 135 | 175 | 451 | 100 | 200 | 160 | 135 | 22 | 8-18 | 220 | 180 | 155 | 22 | 8-18 | |||||||
| 100 | 65 | 195 | 175 | 195 | 500 | 125 | 230 | 190 | 160 | 24 | 8-23 | 250 | 210 | 185 | 22 | 8-18 | |||||||
| 125 | 80 | 210 | 190 | 220 | 526 | 150 | 270 | 220 | 188 | 28 | 8-26 | 285 | 240 | 210 | 24 | 8-23 | |||||||
| 150 | 100 | 255 | 230 | 265 | 623 | 175 | 300 | 250 | 218 | 30 | 8-26 | 310 | 270 | 240 | 26 | 8-23 | |||||||
| 200 | 125 | 300 | 260 | 300 | 690 | 250 | 360 | 310 | 278 | 34 | 12-26 | 405 | 355 | 320 | 30 | 12-26 | |||||||
AF46Y-40 |
25 | 15 | 110 | 95 | 150 | 365 | 32 | 115 | 85 | 65 | 58 | 16 | 4-14 | 140 | 100 | 78 | 18 | 4-18 | |||||
| 32 | 20 | 115 | 100 | 150 | 375 | 40 | 140 | 100 | 78 | 66 | 18 | 4-18 | 150 | 110 | 85 | 18 | 4-18 | ||||||
| 40 | 25 | 120 | 110 | 160 | 390 | 50 | 150 | 110 | 85 | 76 | 18 | 4-18 | 165 | 125 | 100 | 20 | 4-18 | ||||||
| 50 | 32 | 135 | 120 | 160 | 410 | 65 | 165 | 125 | 100 | 88 | 20 | 4-18 | 185 | 145 | 120 | 20 | 4-18 | ||||||
| 65 | 40 | 160 | 140 | 175 | 435 | 80 | 185 | 145 | 120 | 110 | 22 | 8-18 | 200 | 160 | 135 | 20 | 8-18 | ||||||
| 80 | 50 | 170 | 135 | 175 | 451 | 100 | 200 | 160 | 135 | 121 | 22 | 8-18 | 220 | 180 | 155 | 22 | 8-18 | ||||||
| 100 | 65 | 195 | 175 | 195 | 500 | 125 | 235 | 190 | 160 | 150 | 24 | 8-23 | 250 | 210 | 185 | 22 | 8-18 | ||||||
| 125 | 80 | 210 | 190 | 220 | 526 | 150 | 270 | 220 | 188 | 176 | 28 | 8-26 | 285 | 240 | 210 | 24 | 8-23 | ||||||
| 150 | 100 | 255 | 230 | 265 | 623 | 175 | 300 | 250 | 218 | 204 | 30 | 8-26 | 310 | 270 | 240 | 26 | 8-23 | ||||||
| 200 | 125 | 300 | 260 | 300 | 690 | 250 | 375 | 320 | 282 | 260 | 38 | 12-30 | 405 | 355 | 320 | 30 | 12-26 | ||||||
AF46Y-64 |
25 | 15 | 110 | 100 | 160 | 365 | 32 | 140 | 100 | 78 | 58 | 22 | 4-18 | 140 | 100 | 78 | 66 | 18 | 4-18 | ||||
| 32 | 20 | 130 | 110 | 160 | 375 | 40 | 155 | 110 | 82 | 66 | 24 | 4-23 | 150 | 110 | 85 | 76 | 18 | 4-18 | |||||
| 40 | 25 | 130 | 120 | 170 | 445 | 50 | 170 | 125 | 95 | 76 | 24 | 4-23 | 165 | 125 | 100 | 88 | 20 | 4-18 | |||||
| 50 | 32 | 135 | 130 | 195 | 460 | 65 | 180 | 135 | 105 | 88 | 26 | 4-23 | 185 | 145 | 120 | 110 | 22 | 8-18 | |||||
| 65 | 40 | 175 | 160 | 225 | 495 | 80 | 205 | 160 | 130 | 110 | 28 | 8-23 | 200 | 160 | 135 | 121 | 22 | 8-18 | |||||
| 80 | 50 | 175 | 160 | 225 | 525 | 100 | 215 | 170 | 140 | 121 | 30 | 8-23 | 235 | 190 | 160 | 150 | 24 | 8-23 | |||||
| 100 | 65 | 195 | 195 | 245 | 565 | 125 | 250 | 200 | 168 | 150 | 32 | 8-26 | 270 | 220 | 188 | 176 | 28 | 8-25 | |||||
| 150 | 100 | 280 | 265 | 265 | 610 | 200 | 345 | 280 | 240 | 204 | 38 | 8-34 | 375 | 320 | 282 | 260 | 38 | 12-30 | |||||
| 200 | 125 | 300 | 295 | 300 | 680 | 250 | 405 | 345 | 300 | 260 | 44 | 12-34 | 450 | 385 | 345 | 313 | 42 | 12-34 | |||||
AF46Y-100 |
25 | 15 | 110 | 100 | 160 | 365 | 32 | 140 | 100 | 78 | 58 | 24 | 4-18 | 140 | 100 | 78 | 66 | 18 | 4-18 | ||||
| 32 | 20 | 130 | 110 | 160 | 375 | 40 | 155 | 110 | 82 | 66 | 24 | 4-23 | 150 | 110 | 85 | 76 | 18 | 4-18 | |||||
| 40 | 25 | 130 | 120 | 170 | 445 | 50 | 170 | 125 | 95 | 76 | 26 | 4-23 | 165 | 125 | 100 | 88 | 20 | 4-18 | |||||
| 50 | 32 | 135 | 130 | 195 | 460 | 65 | 195 | 145 | 112 | 88 | 28 | 4-26 | 185 | 145 | 120 | 110 | 22 | 8-18 | |||||
| 65 | 40 | 175 | 160 | 225 | 495 | 80 | 220 | 170 | 138 | 110 | 32 | 8-26 | 200 | 160 | 135 | 121 | 22 | 8-18 | |||||
| 80 | 50 | 175 | 160 | 225 | 525 | 100 | 230 | 180 | 148 | 121 | 34 | 8-26 | 235 | 190 | 160 | 150 | 24 | 8-23 | |||||
| 100 | 65 | 195 | 195 | 245 | 565 | 125 | 265 | 210 | 172 | 150 | 38 | 8-30 | 270 | 220 | 188 | 176 | 28 | 8-25 | |||||
| 150 | 100 | 280 | 265 | 265 | 610 | 200 | 355 | 290 | 250 | 204 | 46 | 12-34 | 375 | 320 | 282 | 260 | 38 | 12-30 | |||||
| 200 | 125 | 300 | 295 | 300 | 680 | 250 | 430 | 360 | 312 | 260 | 54 | 12-41 | 450 | 385 | 345 | 313 | 42 | 12-34 |